Отделка WHITE BOX: штукатурка стен, стяжка пола, электромонтажные работы, система отопления, теплые полы, обвязка котельной, радиаторы (трубы из шитого полиэтилена), водоснабжение и канализация
-
-
-
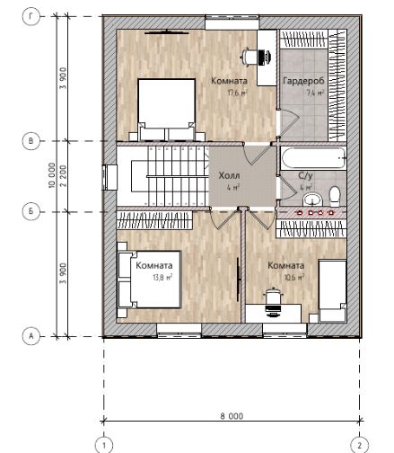
Комплектация
Коробка
Организационные работы
Фундамент: плита на 300 мм
Кладка стен из газобетонных блоков D 400, толщиной 400 мм
Устройство перемычек
Вентканал
Устройство распределяющего пояса
Лестница ж/б
Чердачное перекрытие деревянное
Устройство кровли металлочерепица 0,5 мм
Внутренние перегородки кирпич 120 мм
Устройство распределяющего пояса
Межэтажное перекрытие,пустотные плиты
Кровля металлочерепица 0,5 мм:подшива (пластиковая), снегозадержатели, водосточная система
Тёплый контур
Организационные работы
Фундамент: плита на 300 мм
Кладка стен из газобетонных блоков D 400 «Теплит», толщиной 400 мм
Устройство перемычек
Вентканал
Устройство распределяющего пояса
Чердачное перекрытие деревянное
Внутренние перегородки кирпич 120 мм
Межэтажное перекрытие,пустотные плиты
Лестница ж/б
Кровля:подшива (пластиковая), снегозадержатели, водосточная система
Устройство распределяющего пояса
Заполнение оконных и дверных проемов (окна Exprof Profecta 70mm, фурнитура Roto NT) Трехкамерный стеклопакет, ламининация (не входит в стоимость) Профиль пятикамерный из ПВХ Входная дверь
С фасадом
Организационные работы
Фундамент: плита на 300 мм
Кладка стен из газобетонных блоков D 400 «Теплит», толщиной 400 мм
Устройство перемычек
Вентканал
Устройство распределяющего пояса
Чердачное перекрытие деревянное
Устройство кровли металлочерепица 0,5 мм
Внутренние перегородки кирпич 120 мм
Лестница Ж/Б
Устройство распределяющего пояса
Межэтажное перекрытие,пустотные плиты
Заполнение оконных и дверных проемов (окна Exprof Profecta 70mm, фурнитура Roto NT) Трехкамерный стеклопакет, ламинация (не входит в стоимость) Профиль пятикамерный из ПВХ Входная дверь
Кровля металлочерепица 0,5 мм: подшива (пластиковая), снегозадержатели, водосточная система
Облицовка фасада: кирпич Евроформат
С отделкой
Организационные работы
Фундамент: плита на 300 мм
Кладка стен из газобетонных блоков D 400, толщиной 400 мм
Устройство перемычек
Вентканал
Устройство распределяющего пояса
Чердачное перекрытие деревянное
Внутренние перегородки кирпич 120 мм
Лестница Ж/Б
Устройство распределяющего пояса
Межэтажное перекрытие,пустотные плиты
Заполнение оконных и дверных проемов (окна Exprof Profecta 70mm, фурнитура Roto NT) Трехкамерный стеклопакет, ламинация 9не входит в стоимость) Профиль пятикамерный из ПВХ Входная дверь
Кровля: подшива (пластиковая), снегозадержатели, водосточная система
Облицовка фасада. Кирпич Евроформат
Отделка WHITE BOX: штукатурка стен, стяжка пола, электромонтажные работы, система отопления, теплые полы, обвязка котельной, радиаторы (трубы из шитого полиэтилена), водоснабжение и канализация
Получите предложение по строительству дома по проекту Еловый в 4-х вариантах комплектации
Дополнительно
Терраса
Гараж
Навес
Канализация
Скважена
Отмостка
Способы приобретения
Поэтапная оплата/рассрочка
Оплачиваете поэтапно, каждый этап работы
Семейная ипотека
Ставка от 6 % годовых
Оплата наличными
Возможна 100% оплата собственными средствами
Другие проекты
Брусника
Еловый
Брусника 2
Приглашаем вас к нам в офис
Наглядно покажем вам объекты, которые мы уже построили. Обсудим проекты, планировки, материалы
Адрес: г. Пермь, ул. Стахановская, 45, офис 522 БЦ “Синица”, 5 этаж